刚买了一套新房子,选择了全包的方式来装修。找了熟人介绍的装修公司,忙活了几个月终于装修完了。我家这套华润翡翠府的83平米二居室新房,找熟人全包装修才花费11万,大家觉得值吗?
装修公司:长沙名匠装饰(总旗舰店)预算:11万风格:美式案例套数:20更多
83平米美式设计~既有色彩感,又有质感,小户型做现代美式也可以很好看哦这个业主是30多岁的小夫妻,有一个可爱的男宝宝,业主希望在储物空间上也得到满足
客厅是我们家里休闲的功能区,对于客厅的家具,小编建议大家不要过多,要留出足够的空间方便我们活动,沙发要选择合适的尺寸,不要多大或者过小,根据你家的客厅面积进行选择。

现代与美式的完美结合~家具和地板都是用的美式风格的,沙发偏现代化~

客厅的整体色彩搭配深色里面带有一点亮色,不会很突兀,恰到好处。
对于卧室来说,不宜过长或者过大,一个是狭长的空间不好布置,并且容易让人产生孤独感。为了规避这种现象,我们可以将它一分为二,在内部添加个衣帽间或者书房等等。

这间卧室是把阳台放进了房间里,做成一个生活阳台,可以增加储物空间。

这间是小孩子的房间,充满童趣,颜色鲜艳可爱的窗帘。
卫生间的防水一定要做好,小编告诉你一定要做闭水试验,闭水试验虽然不能说百分百的告诉你防水做的很好,但是如果防水做的不好就会出现问题。想要和邻居和睦共处,防水很关键,谁也不想自己家的房顶漏水,要是你家被楼上淹了,你也会很气愤不仅把自己的房子毁了,而且还会影响我们的正常使用,修起来也很麻烦的。

卫生间做的是干湿分离的,浴室柜是具有代表性的美式风格的。
餐厅是家居生活的心脏,不仅体现了美观,更体现了实用性,整体性。在布置餐厅的时候,可以使用木制的咖啡色餐桌,虽然表面看起来呆板,但是带来的效果却是非常生动的,简单的长方桌,条纹椅,让餐厅充满原始自然的味道。

餐厅的桌椅很美式哦,好看的~
阳台可以用灯光营造出一种浪漫气息,灯光可以选择地灯、壁灯、吊灯等。在忙碌的一天之后,晚上坐在阳台上乘凉,再加上这样的氛围,是多么惬意!

这个阳台上面做了吊柜,也做了嵌入式的设计,把洗衣机放进去了。

书房有做半榻榻米的形式,柜体都是白色的,耐看。
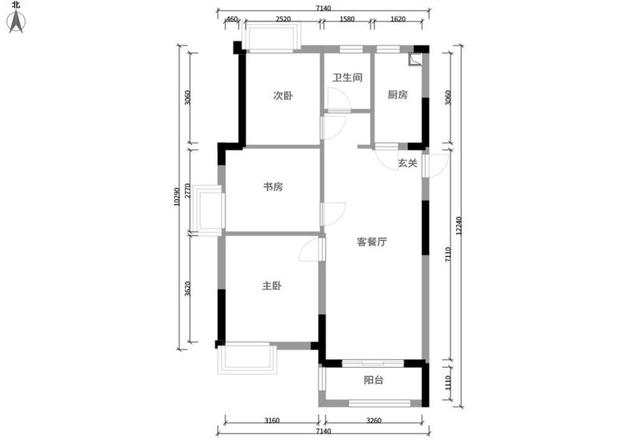
以下就是本套华润翡翠府小区83平米二居室房子的户型图。

华润翡翠府美式风格83平米户型图
上面介绍的83平米二居室装修案例对你有一定的启发吗?本套案例属于美式风格,全包装修总预算11万,装修业主可以参考本套案例来制定自己的装修设计方案及装修预算。
标签: 二居室翡翠价格
评论列表
帝王绿的尊贵,红翡的妖艳如火紫罗兰的神秘等,都让人赞叹不绝。
一颗翡翠的精彩绽放,是在地下经历亿万年不断锤炼的结果
国人以佩戴翡翠玉石来增加自己的品格修养